Фасонные уголки — защита и аккуратная геометрия узлов
Фасонные уголки — это доборные элементы, предназначенные для оформления внешних и внутренних углов, защиты стыков и придания конструкции аккуратного завершённого вида.
Уголки применяются при отделке оконных проёмов, фасадов, откосов, панелей и других строительных узлов в жилых и коммерческих объектах.
Назначение фасонных уголков
- Защита углов от механических повреждений
- Аккуратное оформление стыков и примыканий
- Повышение жёсткости конструкции
- Снижение риска сколов и деформаций
- Эстетичное завершение отделки
Виды фасонных уголков
- Внешние уголки — для защиты наружных углов оконных и фасадных конструкций.
- Внутренние уголки — для аккуратного соединения панелей и откосов внутри помещения.
- Пластиковые уголки — лёгкие и универсальные, подходят для большинства отделочных работ.
- Металлические уголки — повышенная прочность и долговечность при эксплуатации.
Характеристики фасонных уголков
| Материал | ПВХ / оцинкованная сталь |
|---|---|
| Применение | Окна, откосы, фасады, панели |
| Устойчивость к влаге | Полная |
| Цветовые решения | Белый, коричневый, RAL |
| Монтаж | Клей, герметик, крепёж |
Комплексное оформление узлов
Для качественного результата фасонные уголки рекомендуется использовать совместно с другими элементами отделки.
Рассчитать фасонные уголки
Подберём тип, размеры и цвет уголков под ваш объект и рассчитаем стоимость.
Часто задаваемые вопросы об уголках
Для чего нужны фасонные уголки?
Уголки защищают углы от повреждений и придают отделке
аккуратный завершённый вид.
Можно ли подобрать цвет уголков?
Да, доступны стандартные цвета и окраска по каталогу RAL.
Подходят ли уголки для откосов?
Да, фасонные уголки широко применяются при отделке оконных откосов.
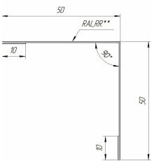
Уголок внутренний 100x100x90 гр. (сталь)
00352
Уголок внутренний с обвальцовкой с двух сторон имеет загиб под углом 90 гр, две плоскости шириной 100 мм...
В наличии ✓
₽245.0
Уголок внутренний 120x120x90 гр. (сталь)
00353
Уголок внутренний с обвальцовкой с двух сторон имеет загиб под углом 90 гр, две плоскости шириной 120 мм...
В наличии ✓
₽290.0
Уголок внутренний 150x150x90 гр. (сталь)
00354
Уголок внутренний с обвальцовкой с двух сторон имеет загиб под углом 90 гр, две плоскости шириной 150 мм...
В наличии ✓
₽360.0
Уголок внутренний 50x50x90 гр. (оцинк)
00349
Уголок внутренний с обвальцовкой с двух сторон имеет загиб под углом 90 гр, две плоскости шириной 50 мм.
..
В наличии ✓
₽131.0
Уголок внутренний 60x60x90 гр. (сталь)
00350
Уголок внутренний с обвальцовкой с двух сторон имеет загиб под углом 90 гр, две плоскости шириной 60 мм.
..
В наличии ✓
₽154.0
Уголок внутренний 80x80x90 гр. (сталь)
00351
Уголок внутренний с обвальцовкой с двух сторон имеет загиб под углом 90 гр, две плоскости шириной 80 мм.
..
В наличии ✓
₽200.0
Уголок наружный 100x100x90 гр. (сталь)
35987
Уголок наружный с обвальцовкой с двух сторон имеет загиб под углом 90 гр, две плоскости шириной 100 мм.
..
В наличии ✓
₽245.0
Уголок наружный 120x120x90 гр. (сталь)
35988
Уголок наружный с обвальцовкой с двух сторон имеет загиб под углом 90 гр, две плоскости шириной 120 мм.
..
В наличии ✓
₽290.0
Уголок наружный 150x150x90 гр. (сталь)
35989
Уголок наружный с обвальцовкой с двух сторон имеет загиб под углом 90 гр, две плоскости шириной 150 мм.
..
В наличии ✓
₽360.0
Уголок наружный 50x50x90 гр. (сталь)
00355
Уголок наружный с обвальцовкой с двух сторон имеет загиб под углом 90 гр, две плоскости шириной 50 мм.
Д..
В наличии ✓
₽131.0
Уголок наружный 60x60x90 гр. (сталь)
00356
Уголок наружный с обвальцовкой с двух сторон имеет загиб под углом 90 гр, две плоскости шириной 60 мм.
Д..
В наличии ✓
₽154.0
Уголок наружный 80x80x90 гр. (сталь)
35986
Уголок наружный с обвальцовкой с двух сторон имеет загиб под углом 90 гр, две плоскости шириной 80 мм.
Д..
В наличии ✓
₽200.0
Показано с 1 по 12 из 12 (всего 1 страниц)
